فرتوکار

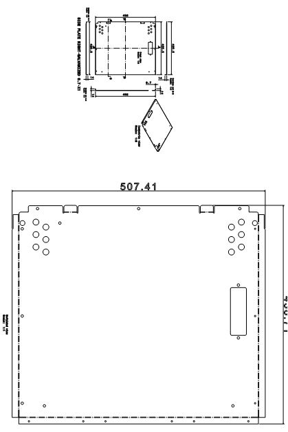
بدنه آون

محفظه فلزی با آلیاژ های مختلفی است که قسمت اصلی فر های توکار را تشکیل میدهد که وظیفه گرم کردن،پختن،مواد غذایی را بر عهده دارد.

مجموعه پویان فلز با استفاده از تیم طراحی و اجرا و با استفاده از پیشرفته ترین و بروزترین تجهیزات میتواند،از اولین نقطه شروع طراحی بدنه آون (فر توکار) تا اجرای تمامی مراحل خم کاری،پرس کاری،لیزر و پانچ،بهترین خدمات را به مشتریان عزیزمان ارائه نماید.

محافظ فن

حافظ فن : محفظه ای فلزی جهت پوشاندن پروانه های فن داخل آون میباشد.

مجموعه پویان فلز مفتخر است که برای اکثر نام و نشان های تجاری و برندهای تجاری صنعت لوازم خانگی و دیگر صنایع، در صنعت تولید فرهای مدرن علاوه بر تولید انواع بدنه آون،قسمت های مختلفی نظیر کاور فن ها را،اجرا می نماید.

بغلی آون (کاور فر)

(کاور فر):محفظه ای فلزی جهت پوشاندن دور تا دور اون که معمولا از جنس ورق  گالوانیزه یا ورق فولادی بارنگ آمیزی های متفاوت ساخته میشود.

مجموعه پویان فلز میکوشد،با استفاده از تیم طراحی و اجرا و با استفاده از پیشرفته ترین و بروزترین تجهیزات،از اولین نقطه مراحل شروع طراحی فرهای تو کار،تا اجرای تمامی مراحل بهترین خدمات را به مشتریان عزیزمان ارائه نماید.

براکت پایه فن

 براکت پایه فن:قطعه ای فلزی که جهت اتصال فن به بدنه آون مورد استفاده قرار میگیرد.

مجموعه پویان فلز با استفاده از تیم طراحی و اجرا و با استفاده از پیشرفته ترین و بروزترین تجهیزات میتواند  از اولین نقطه شروع طراحی پایه فن تا اجرای تمامی مراحل خم کاری،پرس کاری،لیزر و پانچ،بهترین خدمات را به مشتریان عزیزمان ارائه نماید.

بدنه آون
بدنه آون
بدنه آون
بدنه آون
بغلی فر توکار
بغلی فر توکار
بغلی فر توکار
بغلی فر توکار
بغلی فر توکار
بغلی فر توکار
براکت جوجه گردان
براکت جوجه گردان
براکت جوجه گردان
براکت جوجه گردان
فر توکار
فر توکار
فر توکار
فر توکار
فر توکار
فر توکار
فر توکار
فر توکار
فرانت
فرانت
فرانت
فرانت
کاور فن
کاور فن
پایه فن
پایه فن
پایه فن
پایه فن
سوئیچ برد
سوئیچ برد
سوئیچ برد
سوئیچ برد
سینی فر
سینی فر
سینی فر
سینی فر
ستونی درب فر
ستونی درب فر
ستونی درب فر
ستونی درب فر

برای ثبت درخواست در سایت، ابتدا ثبت نام کنید و وارد سایت شوید.


اطلاعات تماس

همراه پویان فرم فلز